浮生未歇:龙湖西府原著98平米现代简约风格案例赏析
2019-05-23 11:20:51 查看人数 590
案例面积:98㎡
案例户型:二居室
装修造价:约15.8万
案例风格:现代
专业源于专注 专注源于细节,业主是三口之家,男女主人是朝九晚五的上班族,喜欢现代简洁风格。
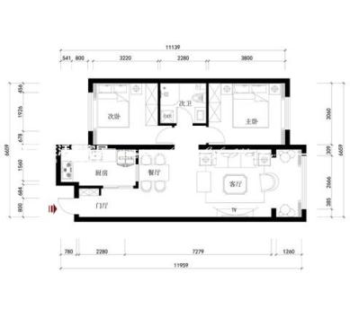
户型图
专业源于专注 专注源于细节,业主是三口之家,男女主人是朝九晚五的上班族,喜欢现代简洁风格。
客厅
客厅1:沙发背景墙采用简洁的线条装饰没有其他的复杂造型,而装饰品没有采用传统的挂画装饰而是用金属的齿轮组合来装饰,简单与发杂相对比产生反差。 客厅2:沙发抱枕与边几上的装饰品相呼应,沙发颜色主要以白色为主,而抱枕却颜色多样,其中采用了姜黄色突出沙发,而空间中茶几上用绿植来装饰。 客厅3:当夜晚来临,忙碌了一天下班回到家,看到暖黄色的灯光打在白色的沙发上和黄色的抱枕上,给人一种温馨的感觉,给人一种可以放下一天的疲惫在沙发上休息一会去缓解一天的疲劳。
卧室
主卧室床头位置制作一个柜子,既可以起装饰作用还可以增加储藏空间,并且柜子并不是直接落到挡板而是留了一些距离,可以放置一些平时用的东西,美观且实用。
餐厅
餐厅区域主要以白色为主,吊柜白色地柜黑色椅面白色其他部分为黑色产生强烈对比,使空间更有层次感。虽然颜色只有白色与黑色,但使用绿植来点缀,给空间增加颜色,避免空间过于单调。
次卧
次卧:床尾部分的墙面采用了整面的黑色墙板,简单大气,而床头的背景墙则是用简单的挂画来装饰。棚顶虽然只是普通的平棚,但是却在床头部分地方留了一条暖黄色灯带,简单却不单调。并且暖黄色还可以综合黑色背景板的沉闷。
