绿城全运村127㎡现代轻奢
2019-05-21 15:48:32 查看人数 588
案例面积:127㎡
案例户型:三居室
装修造价:约15万
案例风格:现代
本案是营造一个现代沉稳、而且具有一点时尚和高品质味道的居住空间环境。为使其沉稳在空间上较多的使用了亮灰色乳胶漆为主。软装产品的造型和图案也充满更多的高级感。
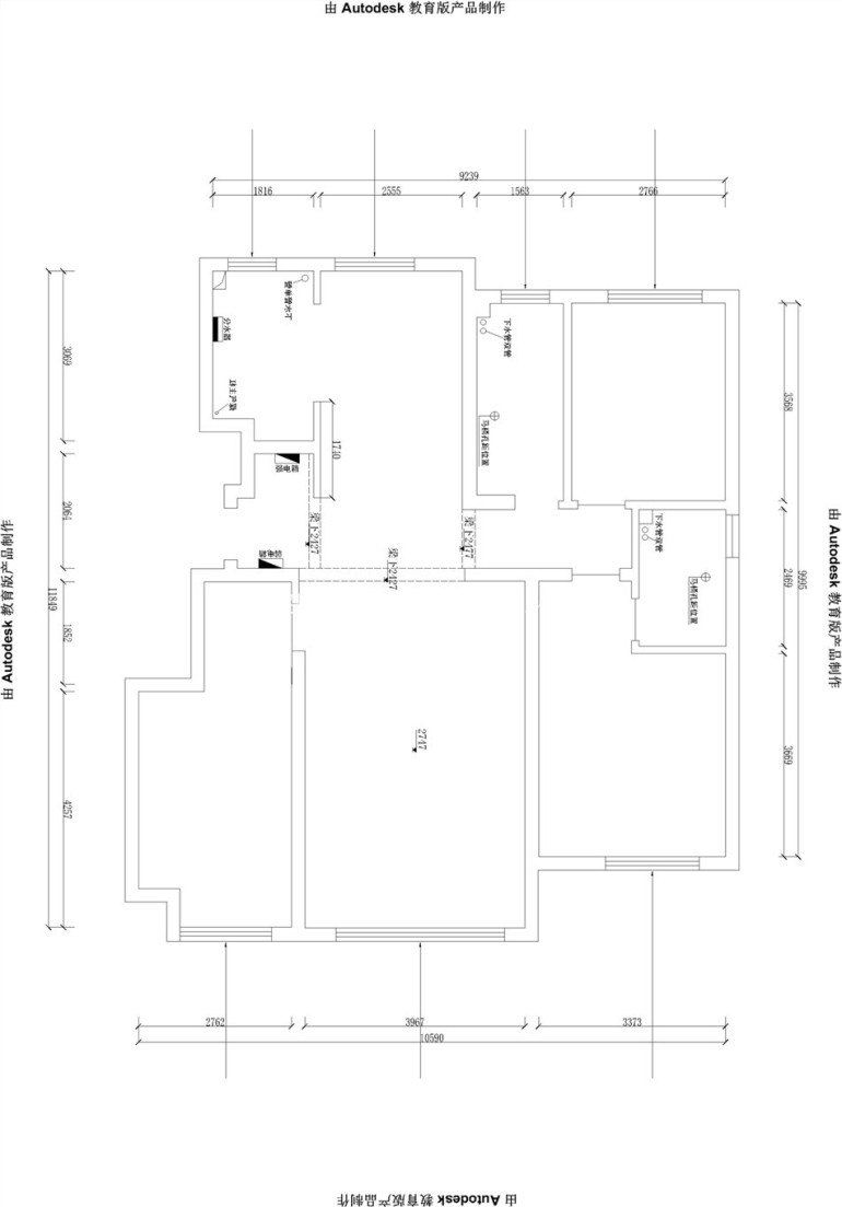
户型图
本案业主为三代同堂,夫妇有一位8岁的活泼好动的儿子,而父母有自己的住所只是偶尔会过来住一下
客厅
客厅整个空间简洁大气,通过家具很好的把空间层次感和现代轻奢感体现出来,整体墙面涂刷亮灰色乳胶漆搭配简单的石膏线条大大提升了客厅的层次感,鎏金的家具搭配绒布的沙发也更加符合轻奢的品质
卧室
主卧保留的原始的飘窗,因为设计师是想为业主营造一个浪漫的理想的生活,可以想象一杯红酒一段音乐盼着美丽的夜光,依偎在飘窗上来享受这美好的慢时光,优雅低调的灰色充斥整个卧室空间如同主人的性格一样,略微的橘色雕琢在整个房间里表达了主人的品质生活。
厨房
厨房的整体设计以简洁实用为主导,烤漆的橱柜和理石纹理的墙砖完美的搭配让整个厨房干净整洁的同时又不失大气高级的时尚感。
餐厅
餐厅的墙面同样延用客厅的石膏线褐灰色的墙面,餐椅的搭配上设计师没有中规中矩的选用相同的色调而是突发奇想的选用了跳色让整个餐厅立刻充满了活力
卫生间
卫生间的墙砖选用大理石纹理,让整个空间整洁大方,地面的元素地砖让沉寂的空间立刻生出了灵动,浴室柜镜柜采用胡桃色给人一种沉稳的感觉。同时在使用上为业主设计的玉屏更好的实现了干湿分离让整个卫生间在不失设计感的同时又整洁使用。
书房
因为是三代人居住,又考虑到业主书房的需求,所以北卧室设计为榻榻米结合书房的形式这样既满足了父母不常住的问题又解决了孩子书房的使用,同时更大大的增加了后期生活中的储藏功能
