品味欧风:龙湖唐宁one88平米欧式风格案例赏析
2019-05-21 14:29:00 查看人数 642
案例面积:88㎡
案例户型:二居室
装修造价:约17万
案例风格:欧式
个性化的情感诉求、多元化的文化设计理念是此次设计重心。弱化了欧式风格的华美细腻,寥寥几笔装饰线条将硬装的简约大方勾勒无余;米白色为主的家具配色奠定温馨优雅的情感基调,色彩斑斓的布艺、错落有致的陈设艺术彰显了业主的性格色彩及情感诉求。设计师以成熟的设计手法,体现了业主的审美品味,加强了情感抒发,回归到文化认同的本真。
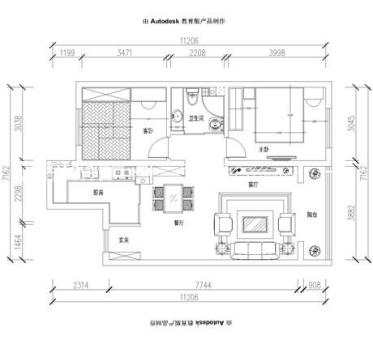
户型图
本案是一对80后夫妻,暂时还没有孩子,对于风格有自己独特的审美观,经过方案的初步设计定为欧式风格,男主人喜欢喝酒因此在餐厅设计一个酒柜,满足夫妻两人生活的惬意。
客厅
客厅Livingroom:客厅家具陈设突出客厅视觉重心,素色布艺辉映硬装的清雅。客厅拨开繁芜的表层,明快简约的装饰线,塑造出简欧硬装的精致;通透的阳台窗,开放式的格局,将清爽欢快的情感抒发得酣畅淋漓。与爱人在沙发上相拥耳语,仿如闲卧云端的神仙美眷,忘却尘世的烦恼,享受当下的浪漫与安逸。
餐厅
餐厅Diningroom:餐厅从简约的定制酒柜,洞悉二人世界的温馨:组合装饰门镜内外,充满了琴瑟和鸣的美好,有家常小菜的乐趣,也有红酒浅酌的浪漫。
过道
门厅Hall:玄关从碎花壁纸到时尚陈列柜,从个性饰品到几何花卉挂画,方寸间风格百变,细细把玩生活的清新素雅和瑰丽斑斓。
