森林秘语——景茂雍水岸郦府120平现代风格家装案例
2019-05-16 11:42:37 查看人数 2832
案例面积:120㎡
案例户型:三居室
装修造价:约24万
案例风格:现代
森林秘语——景茂雍水岸郦府120平现代风格装修
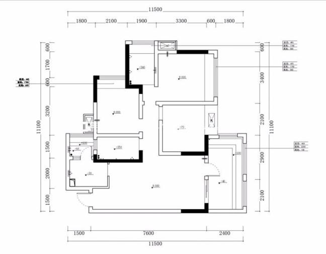
户型图
在原始户型中,许多细节处无法满足业主的需求,于是设计师针对性地进行了调整。原来的生活阳台太小,不便于家人活动,厨房面积不足,无法满足冰箱在室内的使用。所以将生活阳台与厨房打通,增加厨房的可操作空间,客厅阳台考虑晾晒区和种植区,充分利用阳台的光照和面积。在结构改动之后,过道的端景没有采用复杂的装饰去造型,而是用手绘绿植去达到一个自然的感觉。
客厅
客厅的主题为“神秘亚马逊”,墨绿色的大面积墙,焦糖棕色皮质的沙发,让人不禁联想到耐人探寻的亚马逊雨林。似阳光般的金属制品、精致的爵士白大理石,搭配充满生机的绿植,营造出细腻生动的自然环境,让人仿佛看到了最原始的石壁与植物的亲密作伴。宽敞的空间与阳台、餐厅相连通,为家人提供了充足的互动空间。
卧室
卧室从实用出发,轻装修重装饰,床上用品和窗帘布艺,着重考虑材质的对比和色彩的协调。柔和温馨的棉麻材质,搭配绿意盎然的墙面壁纸,演绎最美“波密岗”。不同明度的绿色和灰色塑造出了叠进的层次感,适当的留白凸显了设计感。置身其中,仿佛来到了自然的丛林,一切都令人痴迷。从之前主卧绿与灰的组合,跳跃到次卧明黄与灰色的碰撞,整体有所呼应,又有所不同,给人感觉更加有活力。床头利用长线吊灯增加灯光层次感,且下端光源避免了光线直射,让夜晚的灯光更加柔和。简约的床架保留了最原始的木质风味,灰白的墙面搭配暖灯,让居住期间的人在宁静的氛围中,感受放松和惬意。
厨房
厨房采用月光灰与浅墨绿相结合的色调,在客厅色调的基础上进行了减法。柜底灯的设计让使用更加方便,通过不同光源的布局,满足不同情况的需求。六边形拼贴的地板既大气美观又具备防滑性能,与厨房环境十分契合。大理石台面经久耐用,便于日常清洁整理。
餐厅
金属吊灯在柔和的环境中调节着空间的基调,直线与曲线的穿插组合、光泽与质感的微妙对比,都在开灯的瞬间达到平衡。平时家里只有父母和妹妹,不需要太多座椅,四个餐位足够使用,同时可以让用餐保持温馨的感觉。个性挂画让墙面不再单调,局部的绿色与餐椅相衬,让苍翠欲滴的森林感,陪伴着家人的每一餐。
