金晖嘉园128平米现代风格
2019-05-08 16:13:44 查看人数 10495
案例面积:128㎡
案例户型:三居室
装修造价:约25万
案例风格:其他
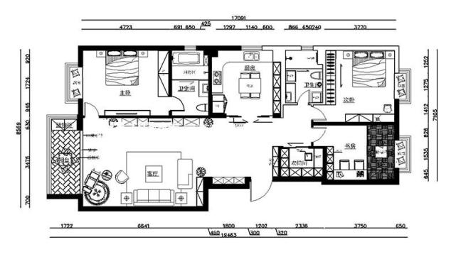
此户型卧室是颜色更加丰富但是依然是冷色系,整体风格协调。厨房面积很大,功能设计上齐全,三居室的空间利用这样一个厨房空间绰绰有余。
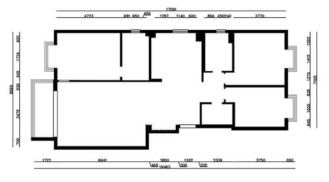
户型图
这是一套3居室户型,业主要求以时尚简约为主。设计师将客厅主色调定位白色,家具搭配及墙面造型加以其他小色块点缀,突出时尚感。
客厅
设计师没有将墙面造型设计复杂,以线条为主,丰富的同时也具有时尚感。吊顶加以回光灯槽,因为客户需求。还在客厅设计了投影,观看视频时,将主灯关掉,回光灯槽与筒灯的使用可以营造氛围。
卧室
主卧背景墙是软包、木饰面、线条的三者结合,相互搭配,互相映衬,突出时尚简约感,木地板的颜色并不厚重相反是时尚的,整体搭配和谐。家具的选择上简单、色彩上点缀整体空间;墙上的壁灯造型不但装饰空间,而且实用性也很强。
书房
次卧没有像主卧造型设计多,因为本身空间不是很大,以实用、简约为主。顶面走一圈石膏线,搭配主灯,没有吊顶及灯槽,整个空间搭配合理。背景墙是整面的深色软包,与地板颜色相互映衬。
