新豪天地120㎡现代简约风格装修设计
2018-12-04 15:32:04 查看人数 864
案例面积:120㎡
案例户型:三居室
装修造价:约16.8万
案例风格:现代
本案例坐落于南充市顺庆区,客户为三口之家,对家的要求简单、温馨使用为主。在风格定位上考虑的是现代风格,整体色系以暖咖色为主要基调。
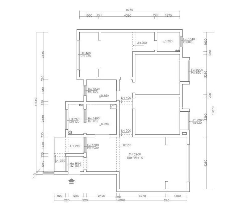
户型图
女主人喜欢烹饪,而又想操作空间不要过于刻板,所以在原户型结构上把厨房阳台的空间纳入厨房一体,并且把厨房吧台烤箱设计进去,让里面简单便餐的时候小宝宝和母亲的互动更好。
客厅
原客厅有分出阳台部分的隔墙,却显得空间有点小,所以在设计的时候把客厅扩大,让整个空间马上显得大气宽敞,而沙发旁边的空间利用起来做一个功能强大的收纳柜子,并且具有一定的灯光展示摆件空间,结合沙发墙的挂画装饰,让空间更具有时尚艺术气息。
卧室
主卧室由于原来卫生间的窗户和门直冲卧室床头,形成空气对流,但是卫生间由于细菌和湿气较重的地方,所以原格局不可取,在调整之后,直接把衣柜中间做个隐形门隔档这一缺陷,其实推开别有天地,外面衣柜两边可以放置长穿衣物,里面有独立的衣帽间和卫生间功能。
小孩天生喜欢亮色系的色彩,所以他的房间色彩独立出来,采用浅色的苹果绿,配合原木色的上下铺床,让空间更加清新明快,而嵌入式的衣帽柜及独立的书桌设计,让以后成长学习功能更加强大。
餐厅
餐厅在原来空间做了一个独立生活阳台的调整,让进门的空间更加方正,而阳台的推拉门使得原餐厅的光线更加充足,墙面使用金属的小鱼挂件,让空间更加生动起来。
