演绎·简——海湾六期132平现代极简风家装案例
2018-07-31 17:50:12 查看人数 1409
案例面积:132㎡
案例户型:二居室
装修造价:约42万
案例风格:现代
本案为现代极简风格家装。业主对空间的态度要求简洁性。让纯白空间大块面的铺开,演绎着对简约的向往,没有繁杂的造型。白色格栅造型背景墙,纯色的布艺沙发,给喧哗的城市保留了一份家的温暖、放松。局部的大花色壁纸,点亮了空间,化繁为简,完美的完成了“家”的蜕变。
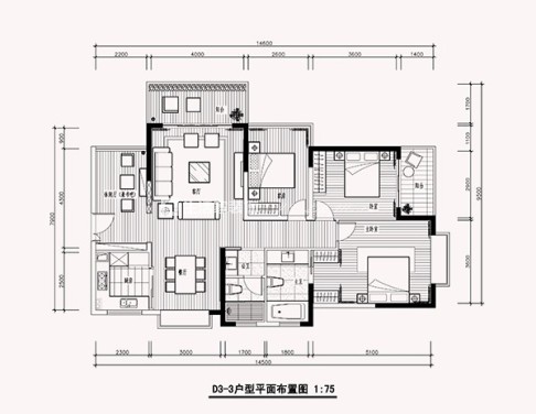
户型图
户型结构稳定整齐,十分适合现代极简风格的家装设计。可以在饰物上尽量的避免冗余,这样可以使得整个空间的简约体现的淋漓尽致。多余的物品也可收纳在沿着墙体安置的储物柜中。节约空间,让生活环境有一个明显地质的提升。
客厅
客厅以无主灯设计,既保证了空间的亮度满足基本需求,又简化了空间,避免杂乱的光影效果,空间简约而不简单,纯色的软装配饰,丰富了空间的层次。也表达了业主从简的生活态度,去除一切繁杂,简单生活才好。
卧室
卧室空间的背景选取是设计的最大亮点,大量选取硬包材质来做填充,用三段式的分割造型,十分有效地提升了空间档次。床体及饰品选取深色来进行呼应,如此可以显现出卧室的氛围感较为柔和,很适合休息和睡眠。
