惊艳!后现代居然能设计的这么美!
2018-05-30 10:36:36 查看人数 904
案例面积:145㎡
案例户型:二居室
装修造价:约1850万
案例风格:现代
设计师前期深入沟通业主的装修需求,根据业主需求量身定制最适合自己的设计效果,在后现代的空间里,设计师通过材质、色彩的运用和软装的搭配将轻奢风打造的淋漓尽致。同事巧妙的运用
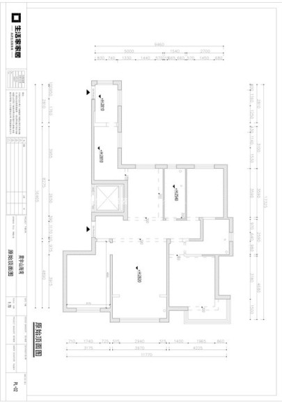
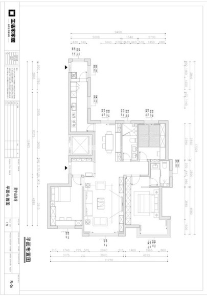
户型图
户型问题: 1、厨房过小 2、餐厅有个300*300的梁 3、进门右手边的的卧室门影响沙发背景墙不完整 4、主卧储物空间小以及主卫格局不规整 解决方案: 1、在保证生活阳台空间足够的情况缩小生活阳台,使厨房扩大 2、顺着梁体架构做卡座遮挡住梁体并且扩大餐厅增加酒柜位置 3、改变进门右手边我是门朝向,让沙发背景墙完整 4、主卧调整门洞位置,增加衣柜空间位置并且改变主卫格局,让整体规整
客厅
客厅也叫起居室,是每天下班回家的第一面,也是房子的门面,客厅宜用浅色,让人有耳目一新的感觉,每天上班很疲劳回家第一感觉消除一天的疲劳。
卧室
卧室是我们家居中最舒服的休息地方,所以在装修中很多人的方式不同,根据每个人的特点、个性、性格等进行针对性的设计,所以整体如何搭配尤为重要,床、柜子、地板、墙面颜色相衬也绝对能起到关键作用!
厨房
厨房是家居装修中至关重要的部分,不仅要美观,还得根据用户的身高设计台面高度,还有收纳空间也很重要,厨房大大小小的东西很多,设计好收纳空间不会让厨房看着很凌乱,整体看着整齐美观!
餐厅
餐厅是一家人其乐融融用餐的地方,在一个优雅的餐厅用餐总能给自己带来一份愉悦舒适的用餐心情,餐厅除了设计美观,还要特别考虑餐厅的使用功能和美化效果,一般要设计的简单、便捷、舒适!
