在线咨询
免费设计
免费量房
免费验房
京东生活家装饰装修公司 / 装修案例 / 明天第一城现代简约风

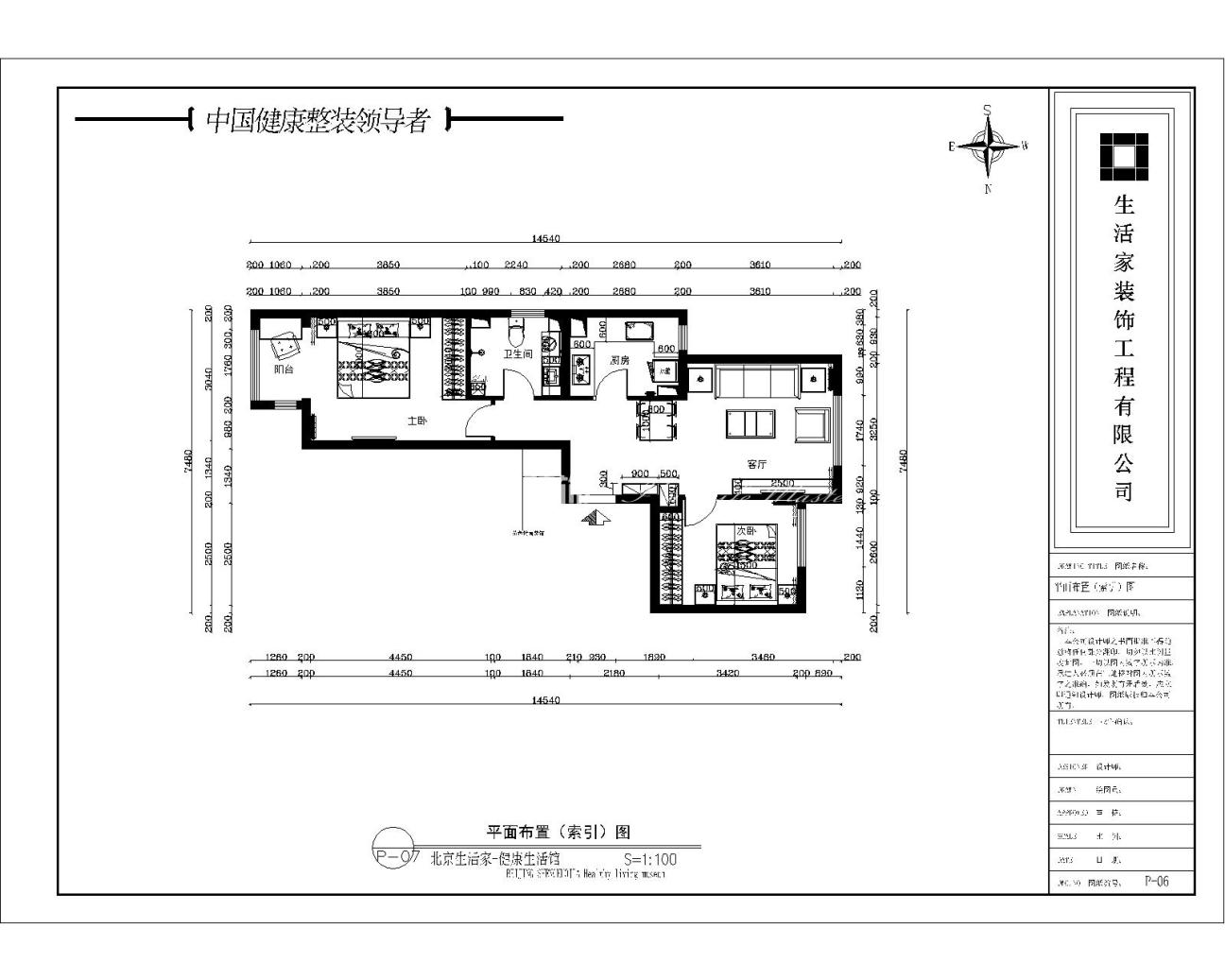
明天第一城现代简约风

2016-10-14 16:43:44 查看人数 1618

案例面积:65

案例户型:三居室

装修造价:约15

案例风格:现代

明天第一城现代简约风

案例设计师

已有 人预约

查看主页

精品案例推荐

查看更多
山海春风 165㎡ 意法混搭

山海春风 165㎡ 意法混搭

金地十一峯 151㎡ 意式轻奢

金地十一峯 151㎡ 意式轻奢

中海汇德里 108㎡ 现代风

中海汇德里 108㎡ 现代风

七彩云南第壹城 101㎡ 奶油原木风

七彩云南第壹城 101㎡ 奶油原木风

Hi~ 我是小葵 装修报价可以找我哟~